Projekt kompleksowy wnętrza

Jak wygląda projekt kompleksowy?
Projekt kompleksowy to projekt koncepcyjny powiększony o nowe elementy. Jest to projekt, który pozwala bardzo precyzyjnie przestawić projektowaną przestrzeń, ponieważ koncepcja zostaje przedstawiona również w formie realistycznych wizualizacji, a także zawiera szczegółowe rysunki dla wykonawców.

Co zawiera?
Wszystkie elementy projektu funkcjonalnego i koncepcyjnego, czyli:
✔ Inwentaryzacja, wizja lokalna (Łódź) lub wykorzystanie posiadanej dokumentacji.
✔ Analiza przestrzeni i potrzeb na podstawie ankiety i rozmowy, zdjęć, inspiracji.
✔ Układ funkcjonalny (2-3 warianty) w formie rzutu.
✔ Moodboard-graficzne zestawienie produktów: 2-3 warianty na podstawie wybranego układu funkcjonalnego. (Moodboard pozwala przedstawić klimat przedstawionej przestrzeni, barwy, materiały, przedmioty oświetlenie itp.)
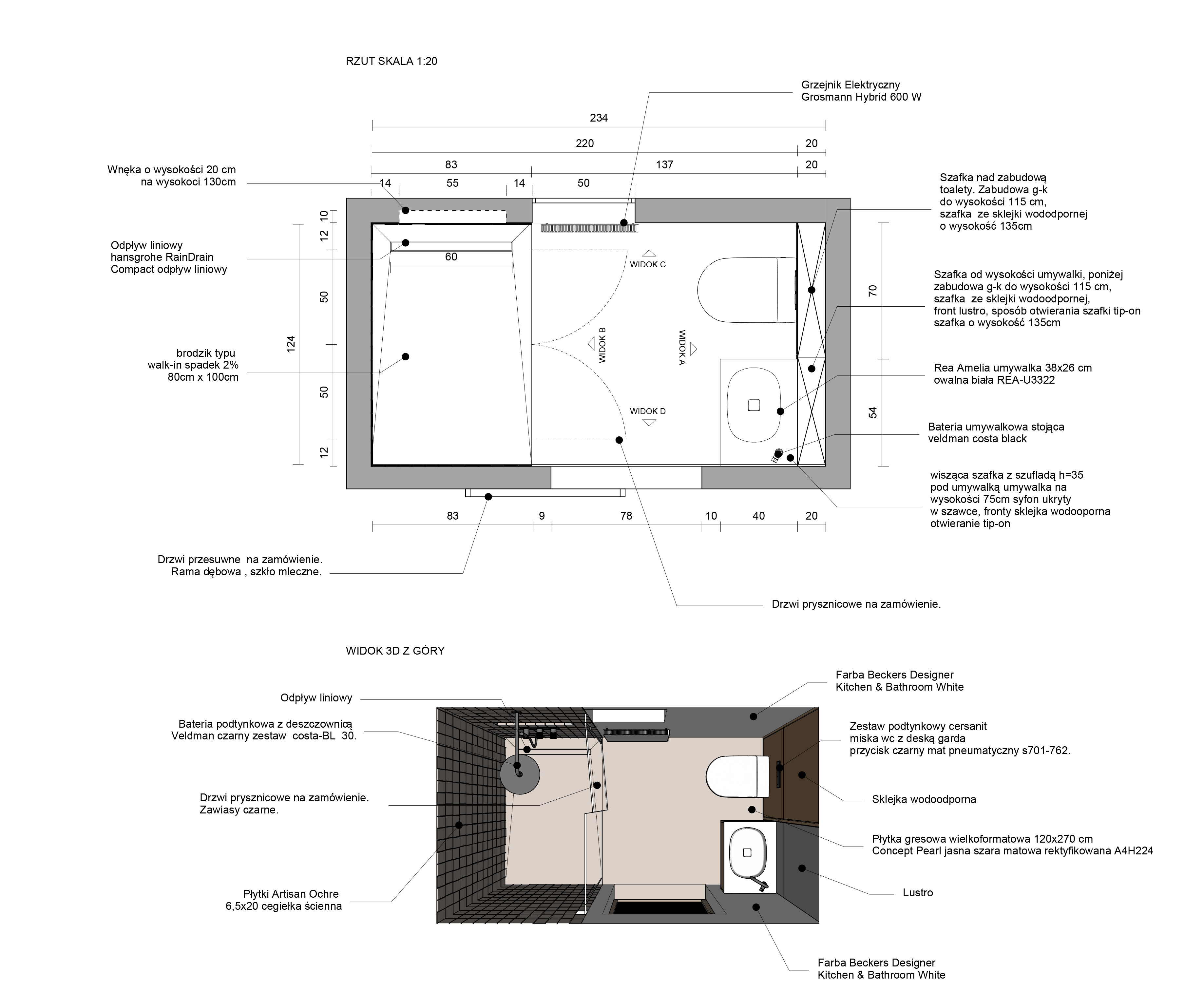
✔ Rzut wraz z wymiarami wybranego rzutu funkcjonalnego.
✔ Zestawienie użytych produktów wraz z linkami internetowymi na podstawie wybranego moodbardu.
✔ Spotkania online lub spotkanie na żywo (Łódź) – 3-4 spotkania.
Są to spotkania w celu omówienia i obejrzenia próbek materiałów projektu, jak również wspólne obejrzenie materiałów w sklepie. Całość dokumentacji otrzymasz w formie wydrukowanej oraz jako plik pdf.
✔ model trójwymiarowy bez realistycznych wizualizacji dla 3 opcji funkcjonalnych.
✔ kosztorys (bez materiałów budowlanych oraz kosztów ekip remontowych).

Plus dodatkowo:
✔ Realistyczne wizualizacje wybranego wariantu modelu trójwymiarowego, 4 ujęcia.
✔ Szczegółowe projekty mebli na zamówienie, jeśli są potrzebne.
✔ Dodatkowe detale wynikające z unikalności projektu.
✔ Rzut posadzek i sufitów (jeśli jest potrzebny).
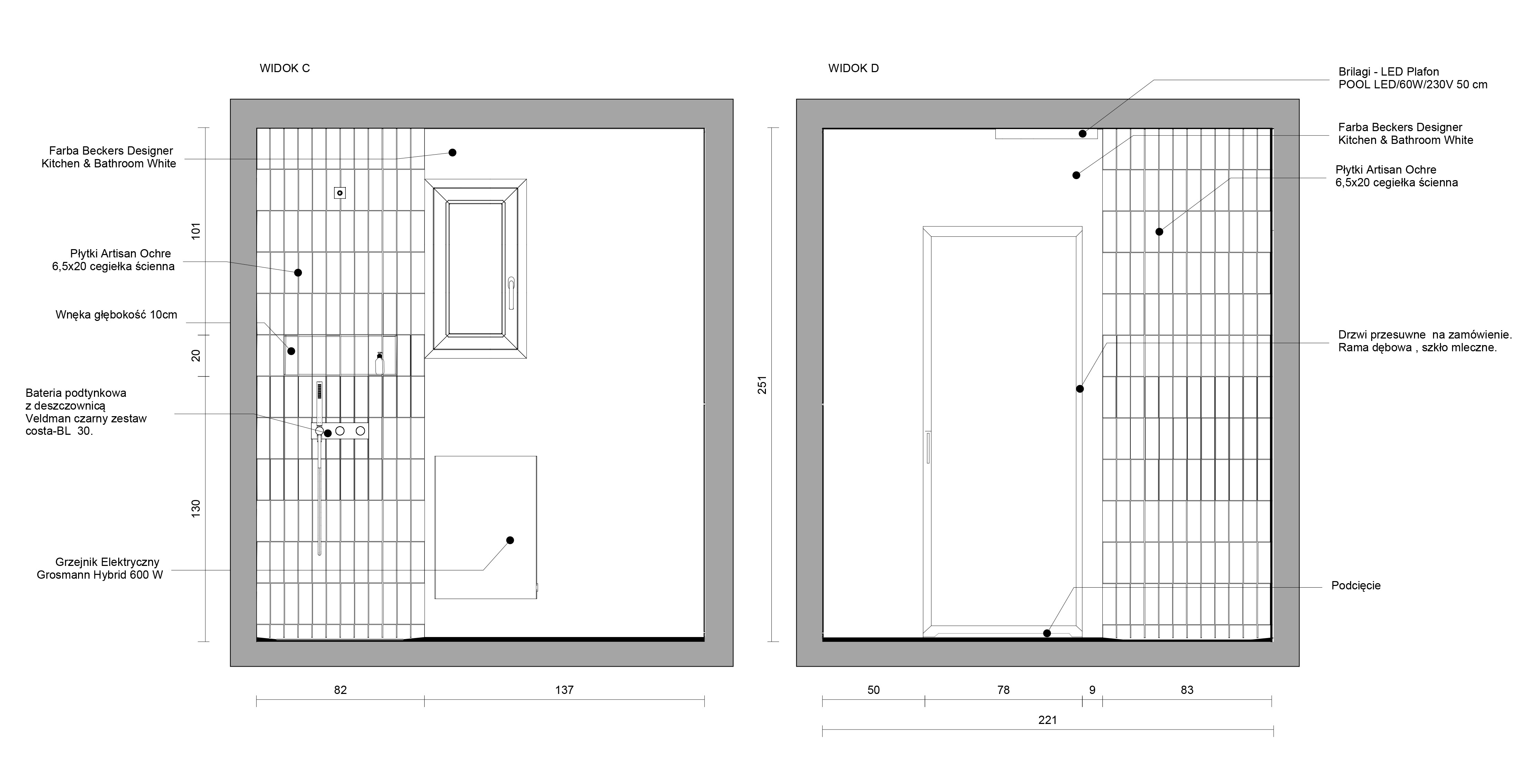
✔ Widoki ścian z materiałami i z wymiarami.
✔ Widoki ścian z umeblowaniem i oświetleniem.
✔ Projekt instalacji wodno-kanalizacyjnej (rzuty).
✔ Projekt instalacji elektrycznej: rzuty oraz widoki.

Wartość usługi: Kuchnia, łazienka, salon - 3000 zł za jedno pomieszczenie, pozostałe pomieszczenia 2500 zł